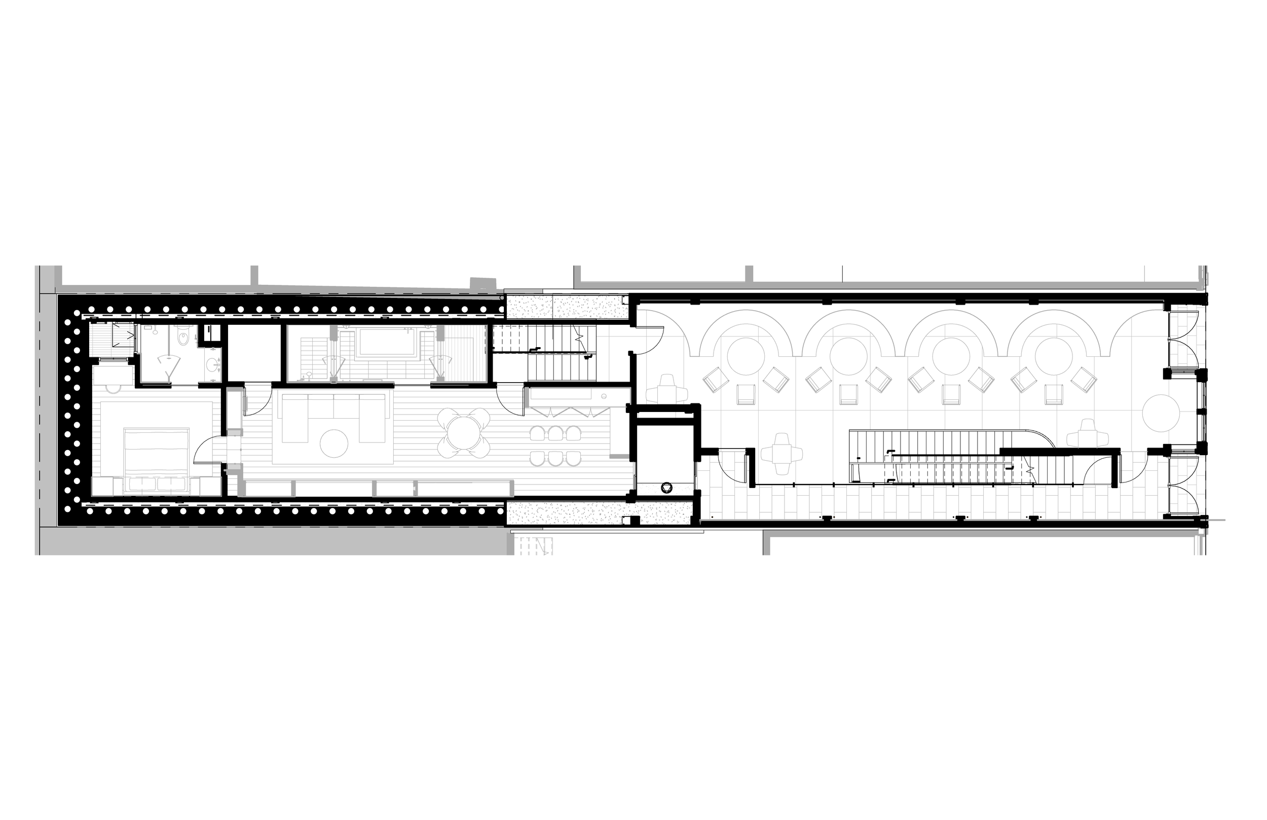
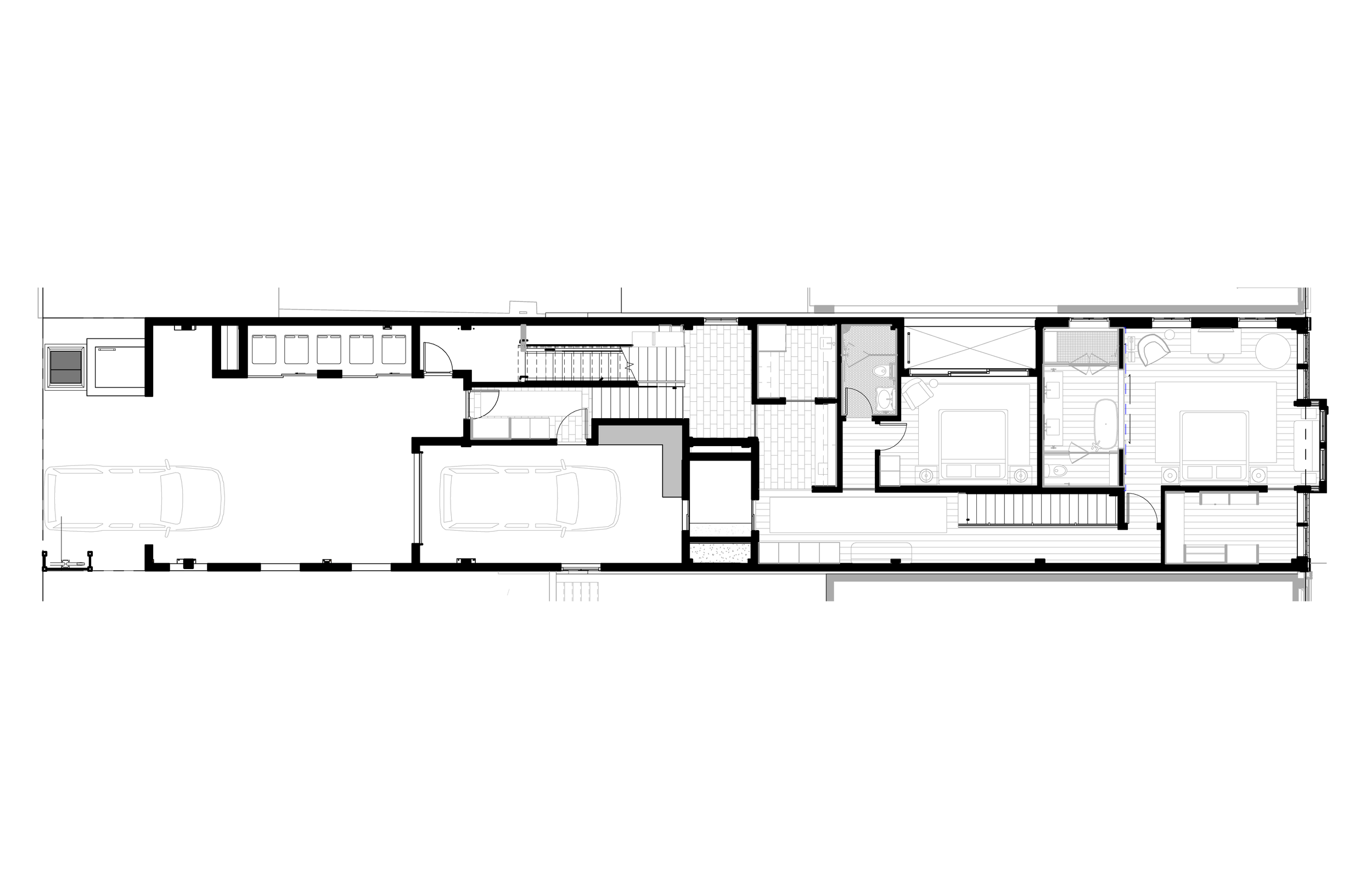
Telluride Main Street
Mixed-Use Commercial & Residential | Telluride, Colorado
Telluride Main Street is a complex mixed-use commercial and residential project designed to strengthen pedestrian connections and outdoor programming along Telluride’s historic core. The architecture integrates state-of-the-art building systems while responding carefully to urban context, regulatory constraints, and year-round use in a mountain environment.

