The Mountain Shed

Custom Residential | Mountain Village, Colorado

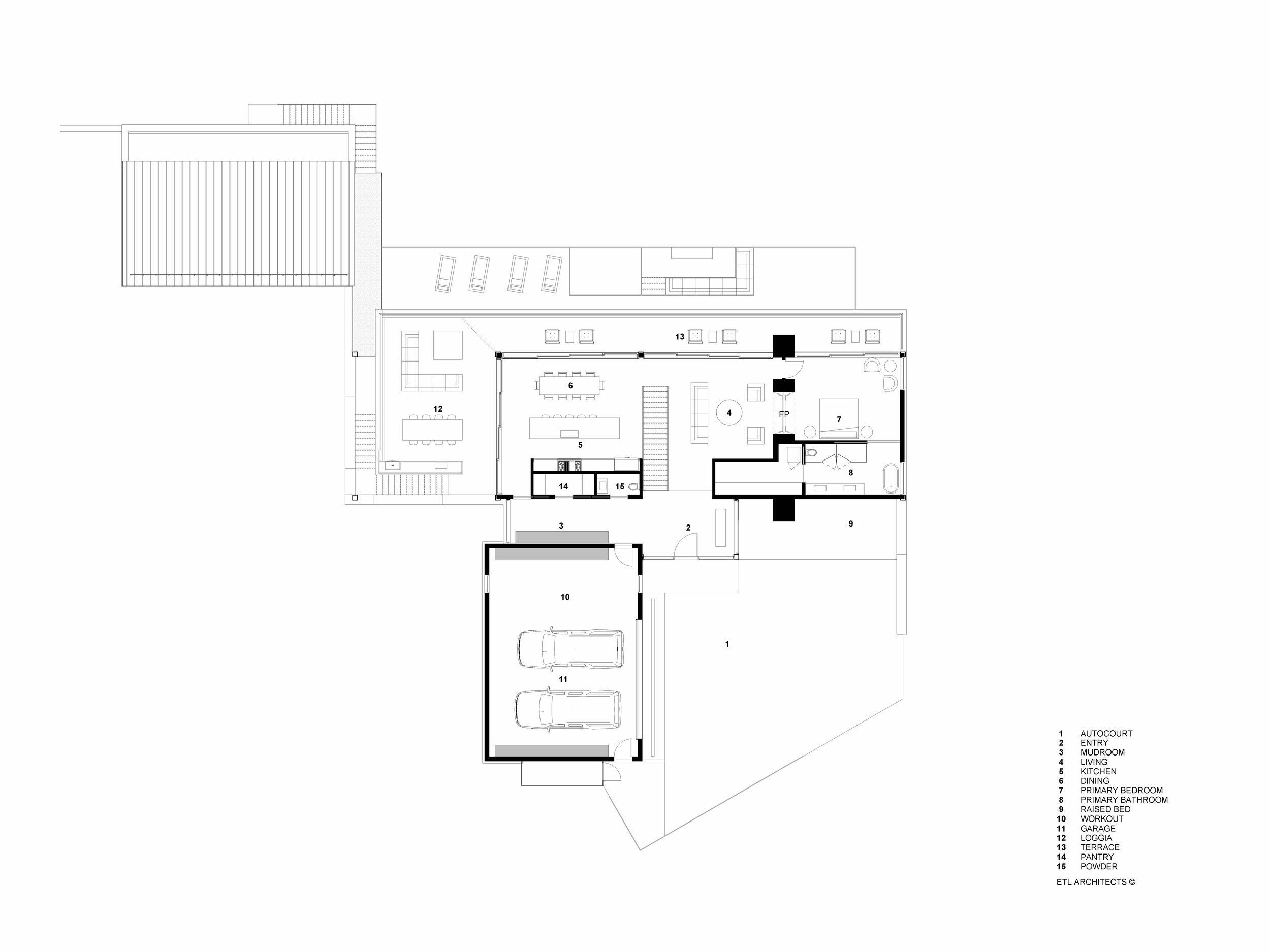
Located in Mountain Village, Colorado, The Mountain Shed is a custom residence with direct ski and golf access from the site. The design emphasizes strong connections to views, circulation, and the surrounding alpine landscape, supporting year-round use in a high-altitude environment.

Previous
Previous

GATED SHIFTER

Next
Next

SCANDI COTTAGE